Alcôves à éclairage

Alcôves à éclairage préfabriquées

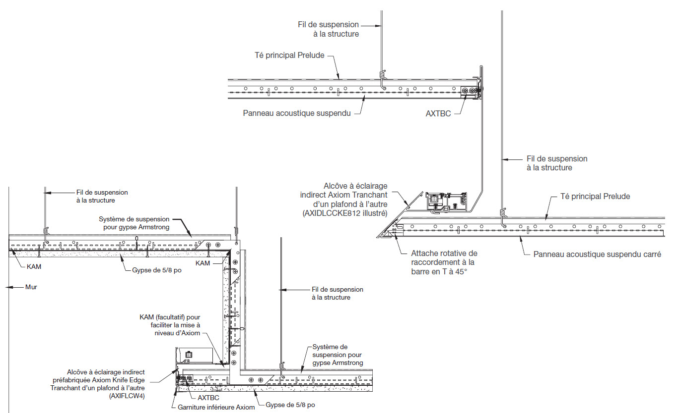
Découvrez comment les alcôves lumineuses préfabriquées augmentent la facilité et la rapidité d'installation directe et indirecte dans des conditions de plafond à mur et de plafond à plafond par rapport aux solutions d'alcôves lumineuses traditionnelles.

De nombreuses solutions d’éclairage direct et indirect avec des alcôves, des profils et des dimensions pour l’éclairage plafond-mur et d’un plafond à l’autre.

Systèmes de plafond ACOUSTIBUILT

Apparence du gypse – Performance semblable à un plafond acoustique.

Comparaison entre traditionnel et préfabriqué

  • Alcôves à éclairage direct
  • Alcôves d’éclairage indirect
  • Alcôves d’éclairage en gypse

Plafond

   

Vidéos


De soutien

Nous sommes là pour vous aider à toutes les étapes du processus de construction.


Ressources